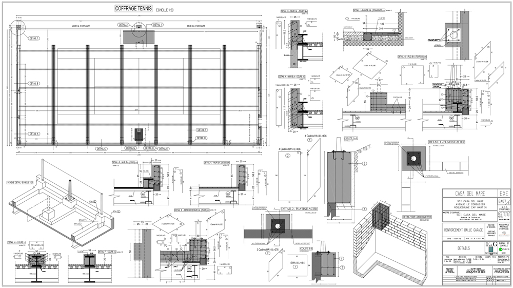
CASA DEL MARE

Roquebrune-Cap-Martin, FR
Progetto strutture, direzione lavori strutturali
2011
Altri professionisti coinvolti:
Progetto architettonico: Archimed
Impresa esecutrice: Eiffage