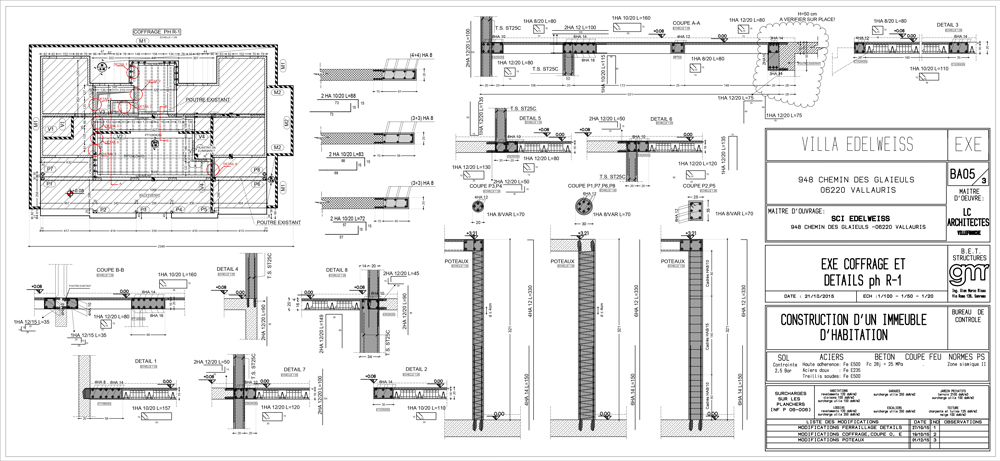
VILLA EDELWEISS

Vallauris, FR
Progetto strutture, direzione lavori strutturali
2015
Altri professionisti coinvolti:
Progetto architettonico: LC Architectes
Impresa esecutrice: GP Constructions