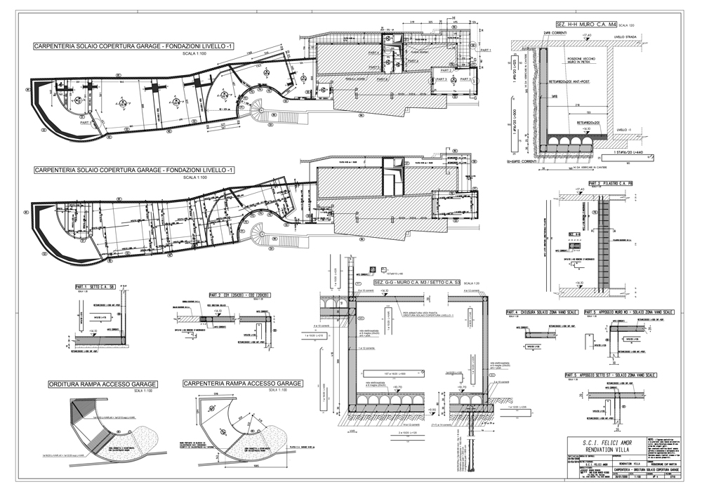
VILLA FELICI AMOR

Roquebrune-Cap-Martin, FR
Progetto edilizio, progetto strutturale, direzione lavori strutturali
2011
Altri professionisti coinvolti:
Progetto architettonico: Arch. Alborno
Impresa esecutrice: Mugello Costruzioni